会議室
大会議室から少人数向けの小会議室まで、目的に応じて選べる多様な会議室をご用意しています。
| 1F |
| 大会議室(全面) |
| 定員 | 108人 |
| 広さ | 179.89㎡ |
| 仕様 | 床:フローリング(カバ) |
| 利用例 | 会議、講演、研修、ダンス、フィットネス、リハーサル、展示会等 |
| 料金 | ご利用料金 、備品使用料(全面利用時のみ) |
| 関連書類 | ご利用打合せ票 (PDF, Excel) |
| 設備 | 音響設備(全面利用時のみ)、アップライトピアノ(2/3面側)、鏡壁(1/3面側)、スクリーン、美術バトン |
| レイアウト図 |


| 大会議室(2/3面) |
| 定員 | 72人 |
| 広さ | 120.94㎡ |
| 仕様 | 床:フローリング(カバ) |
| 利用例 | 会議、講演、研修、ダンス、フィットネス、リハーサル、展示会等 |
| 料金 | ご利用料金 |
| 設備 | スクリーン、バトン |


| 大会議室(1/3面) |
| 定員 | 36人 |
| 広さ | 58.95㎡ |
| 仕様 | 床:フローリング(カバ) |
| 利用例 | 会議、講演、研修、ダンス、フィットネス、リハーサル、展示会等 |
| 料金 | ご利用料金 |
| 設備 | 鏡壁 |


| 小会議室1 |
| 定員 | 12人 |
| 広さ | 29.25 ㎡ |
| 仕様 | |
| 利用例 | 小規模な会議、打合せ、面接・個別相談等 |
| 料金 | ご利用料金 |
| 設備 |
| レイアウト図 |

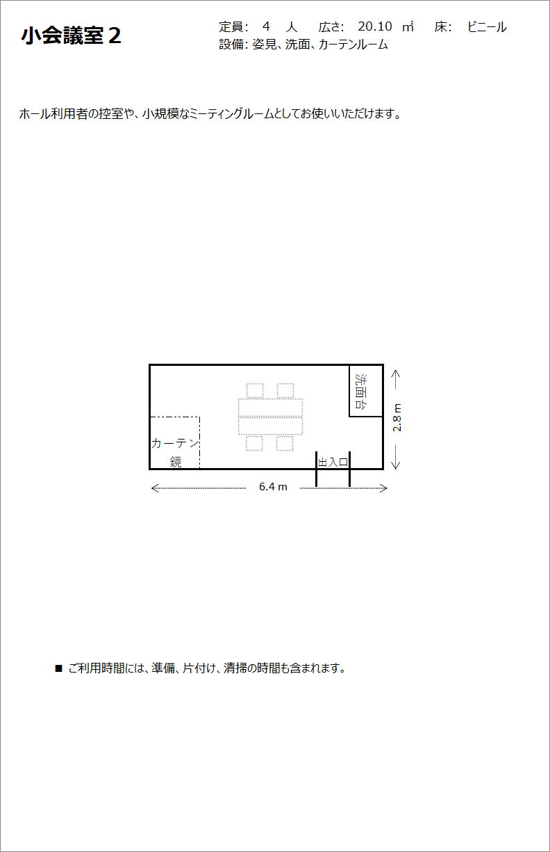
| 小会議室2 |
| 定員 | 4人 |
| 広さ | 20.10 ㎡ |
| 仕様 | |
| 利用例 | ホール利用者の控室、打合せ等 |
| 料金 | ご利用料金 |
| 設備 | 姿見、洗面、カーテンルーム |
| レイアウト図 |

| 2F |
| 中会議室1 |

| レイアウト図 |

| 中会議室2 |

| レイアウト図 |


| 会議室1 |

| 定員 | 36人 |
| 広さ | 60.08 ㎡ |
| 仕様 | |
| 利用例 | 会議、リモート会議、研修、講座、サークル活動等 |
| 料金 | ご利用料金 |
| 設備 |
| レイアウト図 |

| 会議室2 |

| 定員 | 18人 |
| 広さ | 42.00 ㎡ |
| 仕様 | |
| 利用例 | 会議、リモート会議、研修、講座、サークル活動等 |
| 料金 | ご利用料金 |
| 設備 |
| レイアウト図 |

| 会議室3 |

| 定員 | 36人 |
| 広さ | 63.00 ㎡ |
| 仕様 | |
| 利用例 | 会議、リモート会議、研修、講座、サークル活動等 |
| 料金 | ご利用料金 |
| 設備 | 流し台 |
| レイアウト図 |

| 会議室4 |

| 定員 | 36人 |
| 広さ | 65.17 ㎡ |
| 仕様 | |
| 利用例 | 会議、リモート会議、研修、講座、サークル活動等 |
| 料金 | ご利用料金 |
| 設備 | 流し台 |
| レイアウト図 |
